Description du bien
NOYAL CHATILLON SUR SEICHE - Longère d'environ 100m² au sol sur deux niveaux et sa petite dépendance à usage d'abri de jardin.
En plein bourg, cette longère en pierre et terre attend de prendre vie comme maison d'habitation. Ancienne dépendance à usage de stockage, le bâtiment est en bon état mais nécessite un aménagement complet avec permis de construire. Elle bénéficie d'une cour orientée au sud.
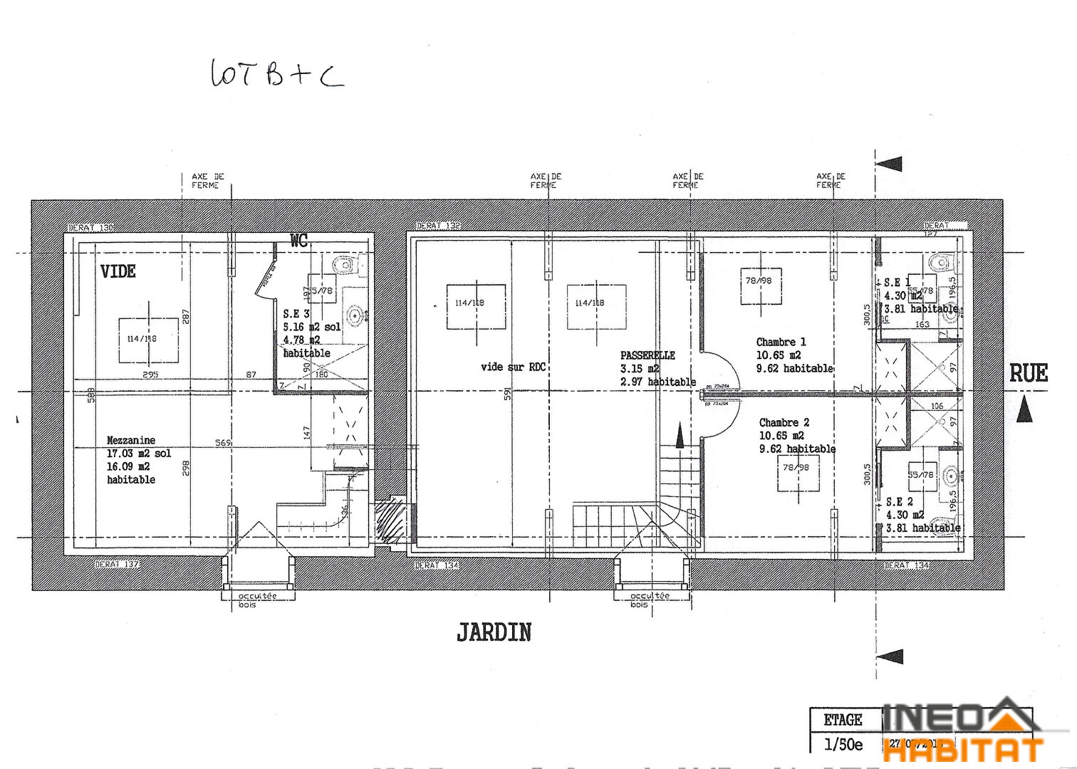
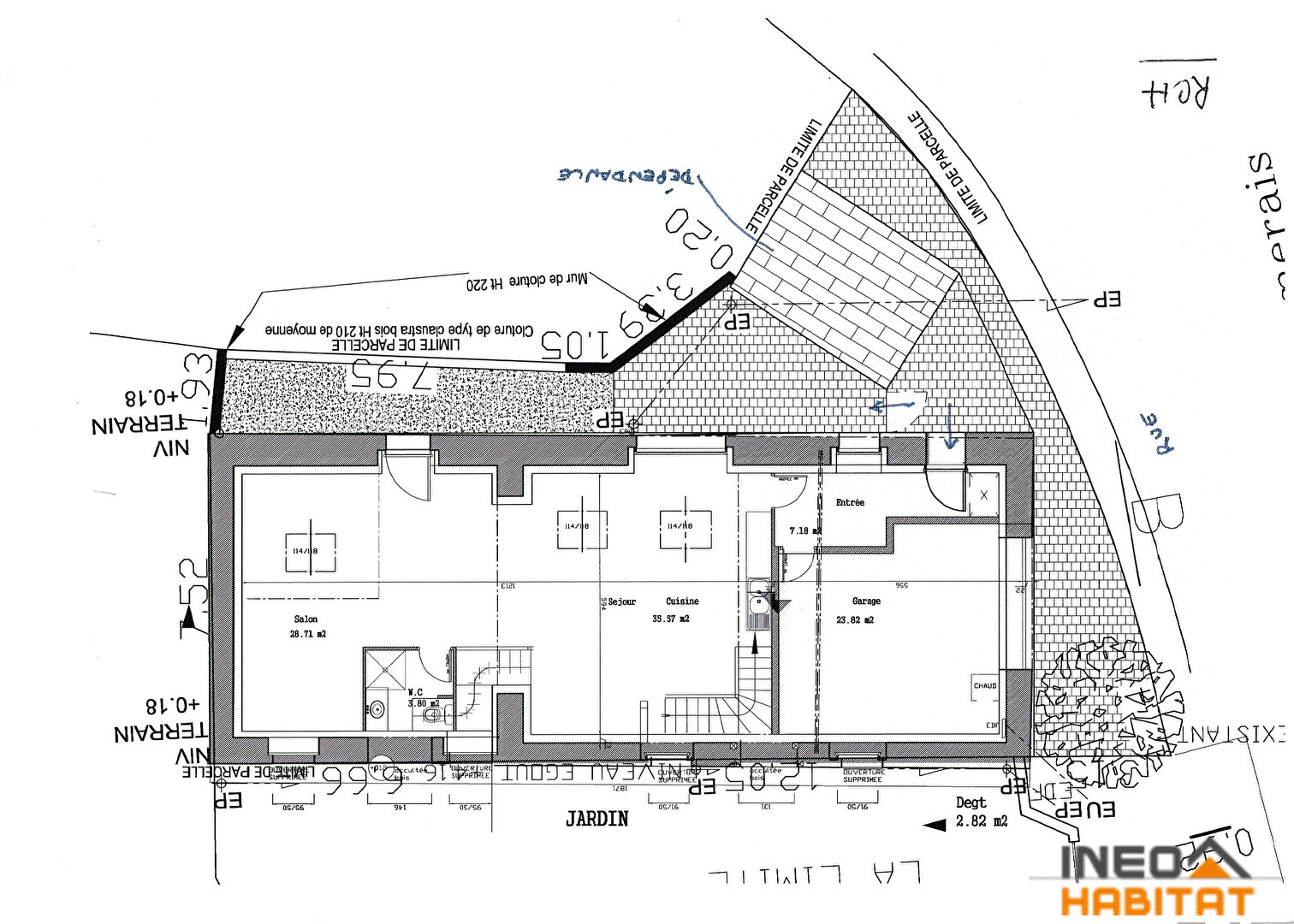
Un permis a été déposé pour sa rénovation, permis qui peut être repris en l'état ou modifié en en faisant la demande en mairie. La configuration et le permis déposés prévoient la création d'un garage accessible en pignon, d'un vaste espace de vie au RDC et de 3 chambres à l'étage. Les plans actuels proposent 150m² de surface habitable environ.
Les travaux liés au permis de construire restent à effectuer, le bâtiment est actuellement nu, vide et sans AUCUN aménagement. Compteur électrique déjà installé, compteur d'eau à installer. (5.00 % honoraires TTC à la charge de l'acquéreur.)
Informations complémentaires
- Ville : Noyal-châtillon-sur-seiche
- Pièce(s) : 5
- Chambre(s) : 3
- Surface habitable * : 150 m²
- Surface du terrain * : 224 m²
- Nb. de niveaux : 1
- Prix : 147 000 €
- Honoraires TTC : 7 000 €
- Référence : 59409619
Dépenses énergétiques
* Surface approximative.